
ЦЕНТР УПРАВЛЕНИЯ БРЕНДОМ НАХОДИТСЯ В САМОМ РАСЦВЕТЕ СИЛ!
Чтобы удовлетворить потребности быстрого развития бренда и лучше обслуживать потребителей по всему миру,
был создан центр управления брендом KUZI, объединяющий офис маркетинга и опыт работы с продуктами.
Расположенный в центре управления брендом KUZI в городе Гуйян, он нацелен на дальнейшее продвижение и внедрение стандартного режима работы бренда и процесса обслуживания,
а также на предоставление потребителям услуг более высокого качества.

КОНЦЕПЦИЯ В ПЕРВУЮ ОЧЕРЕДЬ И ЕДИНСТВО НАПРАВЛЕНИЙ
Основная концепция бренда — «осознавать настоящее и смотреть в будущее». Команда дизайнеров тщательно продумала концепцию, позиционирование и тональность бренда. Привнесите новую энергию в трансформацию бренда «бабочка». В работе использован язык художественного дизайна и абстрактное художественное выражение, чтобы представить уникальное предложение бренда.
КОНЦЕПЦИЯ В ПЕРВУЮ ОЧЕРЕДЬ И ЕДИНСТВО НАПРАВЛЕНИЙ
Все пространство оформлено в сером цвете в качестве основного тона и стандартного цвета бренда для создания простой, атмосферной и модной художественной атмосферы. Это дает людям ощущение качества и интеллектуального визуального наслаждения.
Стиль дизайна все пространство оформлено в простом и современном стиле, объединяет интеллектуальные технологии и индивидуальность бренда, обеспечивает гармонию практичности и артистизма, а также подчеркивает индивидуальность и уникальность бренда.


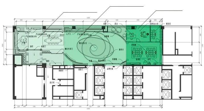
Выставочная зона брендовой продукции
Вся выставочная зона бренда стремится создать визуальный эффект визуальной простоты и тонального комфорта. Благодаря оригинальному мышлению, с сильным чувством замещения, экспозиция продуктов создает ощущение пространства на основе опыта. Все пространство прозрачно и ярко, что дарит людям прекрасное духовное наслаждение.

Область культуры создания имиджа бренда
Направление «Культура имиджа бренда» стремится создать шокирующее визуальное впечатление и богатую культуру бренда, а также создать двойное ощущение смысла и эмоций. Подчеркивая разницу между брендом и публикой, оно также подчеркивает концепцию развития и гуманистические предложения бренда.

Зона фирменного офиса
Рациональная планировка офисной зоны бренда делает пространство более иерархичным и практичным. Яркое, прозрачное, чистое и лаконичное пространство придает людям духовную силу, а пространству — позитивную энергетику.

